Mehrfamilienhaus B1 in Chemnitz

Mehrfamilienhaus B1

Chemnitz | Umbau + Neubau

Der Anspruch Harmonie zwischen Alt und Neu zu schaffen, ist ein zentrales Thema im Umgang mit der baulichen Weiternutzung von Denkmälern. Die Herausforderung der Planung besteht darin, kulturgeschichtliche Zeugnisse zu wahren und gleichzeitig den heutigen Ansprüchen an die Nutzung gerecht zu werden.
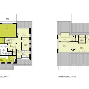
Die um 1920 erbaute, denkmalgeschützte Villa mit Garten ist heute in vier Wohneinheiten geteilt und soll zukünftig um zwei Wohnungen im Dachgeschoss erweitert werden. Privater Außenraum in Form von Balkonen und Terrassen soll geschaffen werden. Der Umbau des Dachgeschosses beinhaltet den Ausbau des Dachspitzes. Über eine interne Treppe wird die Maisonettewohnung mit Dachterrasse erschlossen. An der Südfassade ist ein Anbau als Balkonanlage vorgesehen. In Position und Größe Bezug auf einen historisch ehemals vorhandenen, jedoch im Krieg zerstörten Erker Bezug nehmend, ist dieser jetzt als neues, modernes Bauteil klar ablesbar.


Wohnfläche: ca. 560 m²
Planungszeitraum: 2013 – 2015
Leistungsumfang: LPH 1-4 | Planung (Vorentwurf bis Genehmigungsplanung)